
ひとつの家で、それぞれの日常が満たされる暮らし
- 建物種別
- 一戸建て
- 間取り
- 1F/1LDK・2F1LDK+洗面脱衣室
- 面積
- 66㎡
- 築年数
- 41年
- 構造
- 鉄筋コンクリート造
- 施工場所
- 那覇市
- 施工費用
- 4130万円
施工主の要望
・親子で2世帯住宅として住むにあたって、1~2階の暮らしに合わせたリノベーション。
・1階は今後も親世帯が過ごしやすいようバリアフリーを意識したい。
・インドアなため、2階は室内で快適に過ごせる空間を希望。
・趣味のサウナも設置したい。
・1階は今後も親世帯が過ごしやすいようバリアフリーを意識したい。
・インドアなため、2階は室内で快適に過ごせる空間を希望。
・趣味のサウナも設置したい。
リフォームのポイント
今回は、ご実家を親子で暮らす二世帯住宅として活用するため、1階・2階それぞれに合わせたリノベーションを行いました。
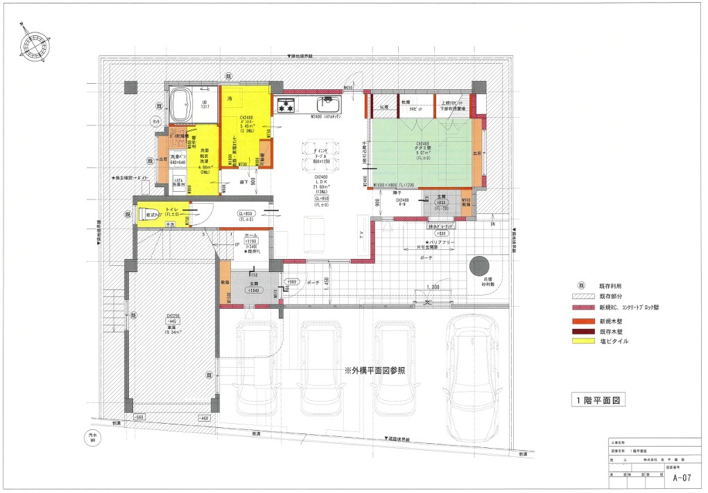
1階の親世帯が暮らす空間は、これからの暮らしやすさを考えて段差をできるだけなくすなど、バリアフリーを意識した設計に。
玄関まわりのアプローチから室内まで、移動がスムーズにできるよう配慮しながらもこれまで通り家族や親戚が集まりやすい空間も残しています
。
ドアは構造上制限があった部分を除き、引き戸に統一。
内装では、以前に印象的だったアール型の出入口を、今回は△三角デザインへとアレンジ。
お好みに合わせて壁のアクセントカラーも取り入れて、親世帯の暮らしに寄り添いながら、使いやすさと安心感を兼ね備えた仕上がりとなりました。
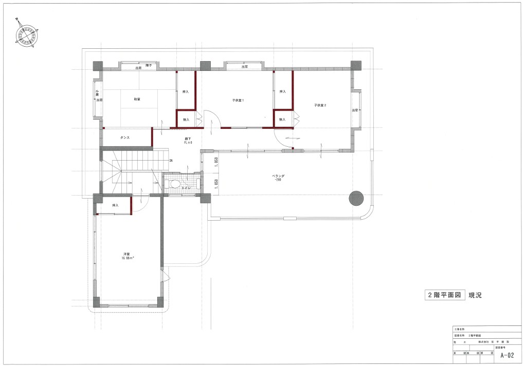
2階は、これまで廊下に沿って個室が並ぶ間取りでしたが、今回のリフォームでは壁を取り払い、広々とした1LDKの空間へと大きく間取り変更を行いました。
内装は黒やブラウンを基調にした落ち着いたトーンでご提案。
壁や天井の仕上げにはポーターズペイント塗装を採用いただき、ご要望に合わせたホテルライクな空間へと生まれ変わりました。
さらに、外のバルコニーにはウッドデッキを敷いてサウナも設置。
「ワンちゃんとの暮らしや、趣味の時間をもっと楽しめそう」と、完成をとても喜んでいただけました。
今回は外まわりにも手を加えて、外壁塗装・駐車場の整備・玄関アプローチの新設なども実施しています。
親世帯・子世帯それぞれの暮らしに配慮しながら、プライベートをしっかり分けた“完全分離型の二世帯住宅”が完成しました。
1階の親世帯が暮らす空間は、これからの暮らしやすさを考えて段差をできるだけなくすなど、バリアフリーを意識した設計に。
玄関まわりのアプローチから室内まで、移動がスムーズにできるよう配慮しながらもこれまで通り家族や親戚が集まりやすい空間も残しています
。
ドアは構造上制限があった部分を除き、引き戸に統一。
内装では、以前に印象的だったアール型の出入口を、今回は△三角デザインへとアレンジ。
お好みに合わせて壁のアクセントカラーも取り入れて、親世帯の暮らしに寄り添いながら、使いやすさと安心感を兼ね備えた仕上がりとなりました。
2階は、これまで廊下に沿って個室が並ぶ間取りでしたが、今回のリフォームでは壁を取り払い、広々とした1LDKの空間へと大きく間取り変更を行いました。
内装は黒やブラウンを基調にした落ち着いたトーンでご提案。
壁や天井の仕上げにはポーターズペイント塗装を採用いただき、ご要望に合わせたホテルライクな空間へと生まれ変わりました。
さらに、外のバルコニーにはウッドデッキを敷いてサウナも設置。
「ワンちゃんとの暮らしや、趣味の時間をもっと楽しめそう」と、完成をとても喜んでいただけました。
今回は外まわりにも手を加えて、外壁塗装・駐車場の整備・玄関アプローチの新設なども実施しています。
親世帯・子世帯それぞれの暮らしに配慮しながら、プライベートをしっかり分けた“完全分離型の二世帯住宅”が完成しました。
Before




After

外壁

アプローチ

1階LDK

1階LDK+和室

1階和室

1階パントリー

1階洗面室

1階トイレ

1階LDK+和室

2階玄関

2階洗面室

2階洗面室

2階WIC

2階浴室

2階階段

ポーターズペイントウォール

2階LDK

2階アイランドキッチン

2階LDK

2階寝室

2階寝室

2階サウナ






















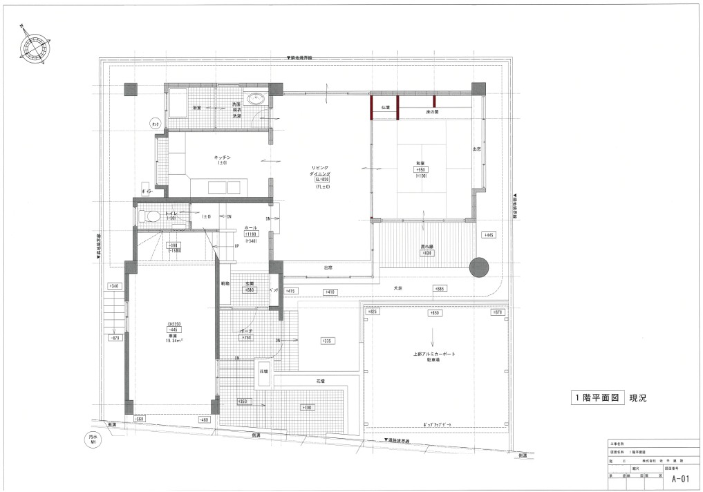
ルームプラン
1F
Before
After
2F
Before
After






