
必要なときに、必要なカタチの暮らし
- 建物種別
- 一戸建て
- 間取り
- 2LDK(2F)
- 面積
- 59㎡
- 築年数
- ー
- 構造
- 鉄筋コンクリート造
- 施工場所
- 那覇市
- 施工費用
- 57万円
施工主の要望
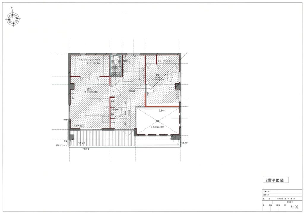
・2Fホールに個室造作希望
・吹き抜けの壁で一部汚れのあるカ所をクロス張替え
・玄関タイル一部補修
・吹き抜けの壁で一部汚れのあるカ所をクロス張替え
・玄関タイル一部補修
リフォームのポイント
新築当時から弊社で建築・施工をお任せいただいているオーナーさまより、今回は「お子さまの成長に伴い、個室を新たに設けたい」とのご相談をいただきました。
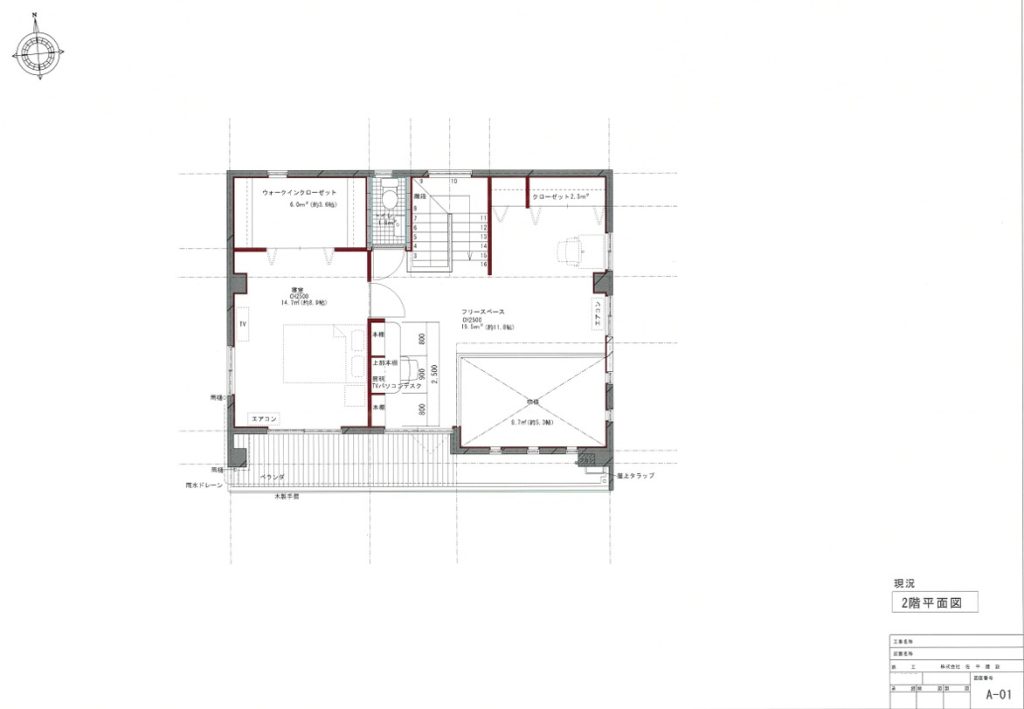
もともと2階ホールは、将来的な用途の幅を広げられるようにと、フリースペースとして広く確保していた空間。
今回はその一角に壁を新らしく建てて間仕切りによって個室へと造作し、新たな個室へのドアや壁紙も、既存の内装と違和感なくなじむよう仕上げました。
あわせて、長く暮らし続ける中で「そろそろ整えたい」と感じていたポイントもこの機会にまとめてメンテナンス。
吹き抜け壁に見られた一部の汚れにも壁紙の張替えを、玄関タイルには部分的な補修も行いました。
家族のライフステージに合わせて、暮らしに寄り添う住まいづくりのお手伝いができた工事となりました。
もともと2階ホールは、将来的な用途の幅を広げられるようにと、フリースペースとして広く確保していた空間。
今回はその一角に壁を新らしく建てて間仕切りによって個室へと造作し、新たな個室へのドアや壁紙も、既存の内装と違和感なくなじむよう仕上げました。
あわせて、長く暮らし続ける中で「そろそろ整えたい」と感じていたポイントもこの機会にまとめてメンテナンス。
吹き抜け壁に見られた一部の汚れにも壁紙の張替えを、玄関タイルには部分的な補修も行いました。
家族のライフステージに合わせて、暮らしに寄り添う住まいづくりのお手伝いができた工事となりました。
Before




After

玄関タイル

新設個室

新設個室ドア

新設個室

新設個室

新設個室






ルームプラン
2F
Before
After
